Lot 3 - Pearl House, 186A Maple Road, Bromley, London, SE20 8HT

  • Unconditional Online Auction Sale
  • Guide Price* : £7750+

Head lease investment comprising 1 x 3 bedroom and 2 x 1 bedroom flats arranged across the first, second and third floors producing £650 pa.

Description

The flats were built in 2020 with the benefit of a 10 year structural warranty. Held on leases for 125 years from 16/09/2020 with reviews every 10 years indexed to RPI.

Intro - "Auction Date"

FOR SALE BY PUBLIC AUCTION - Thursday 16th June 2022

Rent:

Ground Rent: £650 pa

Accommodation:

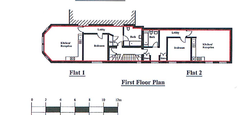
Flat 1: First floor 1 bedroom.
Flat 2: First Floor 1 bedroom.
Flat 3: Second & Third Floors 3 bedroom duplex.

Tenure:

Head Lease: 125 years from 2020. Collective ground rent income £650 pa, reviews 10 yrs indexed to RPI.

* Generally speaking Guide Prices are provided as an indication of each seller's minimum expectation, i.e. 'The Reserve'. They are not necessarily figures which a property will sell for and may change at any time prior to the auction. Virtually every property will be offered subject to a Reserve (a figure below which the Auctioneer cannot sell the property during the auction) which we expect will be set within the Guide Range or no more than 10% above a single figure Guide.

Loading the bidding panel...

Office Contact

Ground Rent Auctions
0203 987 0139

Agreement Documents

Additional Documents

Make an Enquiry

Submit an enquiry and someone will be in contact shortly.

 
*  
*  
*
*
*

Share